ZAPRASZAMY DO ZAPOZNANIA SIĘ Z NASZĄ OFERTĄ:

NALOTY FOTOGRAMETRYCZNE / SKANY LASEROWE / TWORZENIE CHMUR PUNKTÓW!

 

Dzięki wdrożeniu w naszej firmie ultra-nowoczesnych technologii, mamy zaszczyt zaprezentować Państwu niespotykanej jakości pomiary, oparte na fotogrametrii oraz skanach laserowych.

 

Inwentaryzacje architektoniczne jeszcze nigdy nie były tak precyzyjne!

Jesteśmy w stanie wykonać modele 3D obiektów z dokładnością nawet do 2mm!

 

Zaawansowana technologia opiera się na nalotach dronem i wykonaniu kilkuset zdjęć
z powietrza. Następnie, dzięki zaawansowanemu oprogramowaniu, otrzymujemy kalkulację przestrzenną oraz punkty w przestrzeni tzw. chmurę punktów.

 

Na podstawie chmury punktów wykonujemy bardzo precyzyjny model BIM.

 

Wykonujemy naloty fotogrametryczne dla potrzeb:

 

  • chmur punktów
  • inwentaryzacji architektury
  • pomiarów geodezyjnych
  • podkładów terenowych do wizualizacji

 

 

Wykonujemy również na zlecenie:

 

  • zdjęcia i filmy obiektów do celów marketingowych
  • skład klipów z podkładem dźwiękowym oraz profesjonalnym lektorem

 

Już dziś zapytaj o wycenę Twojego projektu!

OFERTA <- kliknij

Do precyzyjnych inwentaryzacji używamy profesjonalnego skanera

 

Leica ScanStation C10

 

Zasięg 300 metrów!

Laserem skanujemy obiekt z zewnątrz jak i wewnątrz, natomiast fotogrametrią wspieramy tworzenie chmur zewnętrznych miejsc ciężko dostępnych np.: dachów.

 

W rezultacie otrzymujemy bardzo precyzyjną chmurę punktów gotową do dalszej obróbki.

 

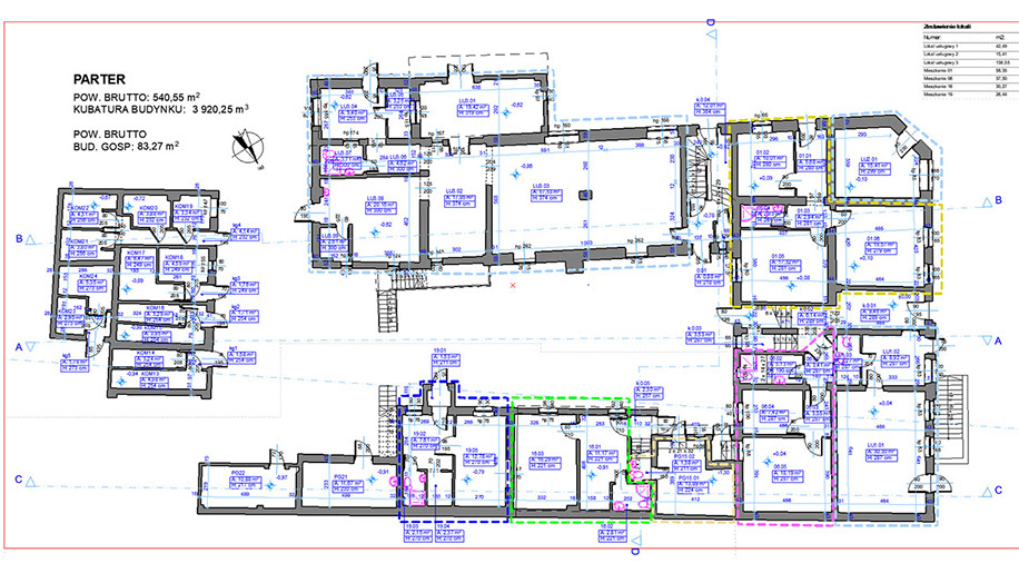
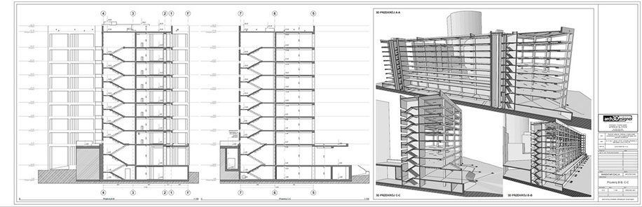
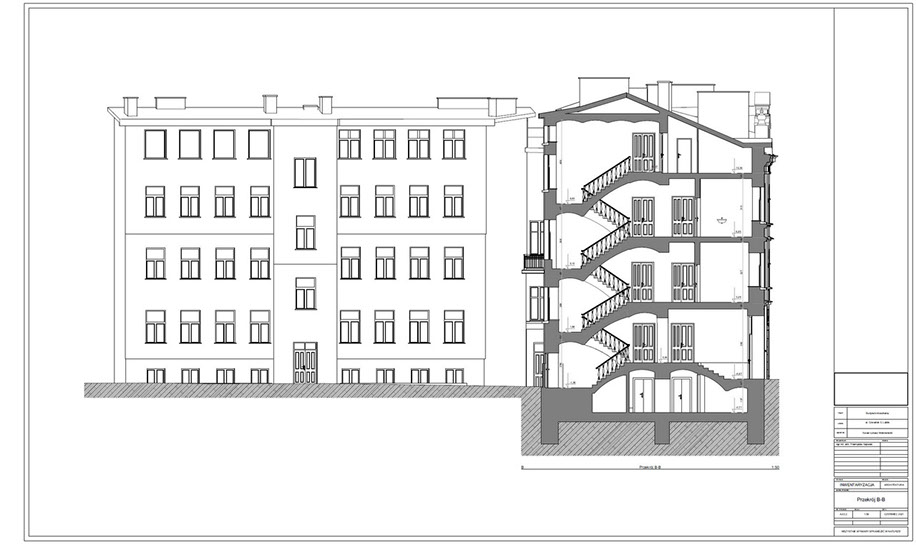
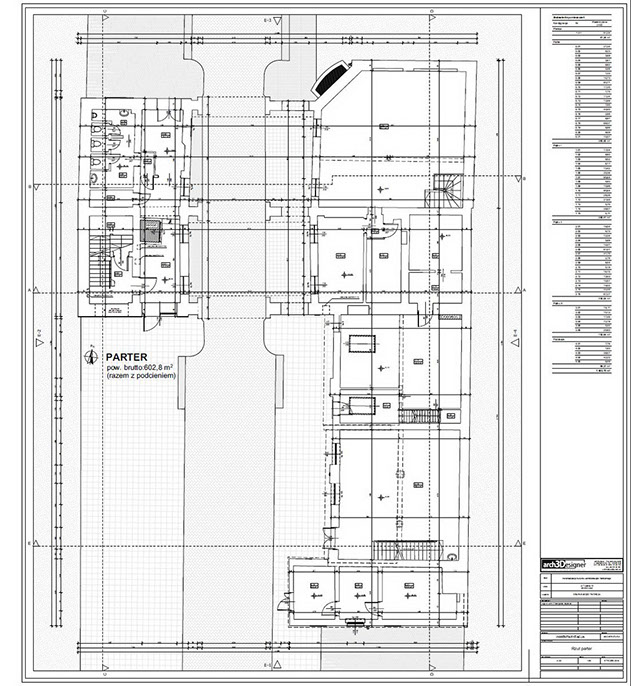
Chmura punktów służy za podstawę do tworzenia na jej bazie precyzyjnego modelu BIM, z którego otrzymujemy całą dokumentację techniczną: rzuty, przekroje, elewacje.

 

Dzięki tej technologii inwentaryzacja jest bardzo precyzyjna a czas realizacji diametralnie zmniejsza się w stosunku do tradycyjnych metod!

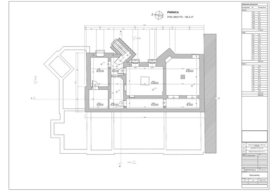
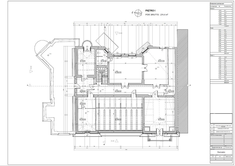
Przykład jednej z naszych realizacji: Łódź, Włókiennicza 11, dom Hilarego Majewskiego. Skan na potrzeby rewitalizacji kamienicy.

Dzięki sprzętowi z najwyższej półki, nasze pomiary są wykonywane profesjonalnie z niezwykłą dbałością o szczegóły!

 

Canon 5D mark IV + obiektywy serii L

Specjalne uprawnienia pozwalają nam wykonywać loty komercyjne w niemalże wszelkich lokalizacjach!

 

Uprawnienia BVLOS o masie do 25 kg!

 

dron DJI Phantom 4 Pro / 4k 60 fps!

dron DJI Matrice 600 (możliwość wynajęcia)

PRZYKŁADY NASZYCH REALIZACJI

ZABYTKOWA KAMIENICA, PABIANICE

CEGIELNIA, PABIANICE

KAMIENICA Z XIX WIEKU, ŁÓDŹ

KAMIENICA Z 1898 r, INOWROCŁAW

DOM JEDNORODZINNY

KAMIENICA, POZNAŃ

WILLA STEIGERTA, ŁÓDŹ

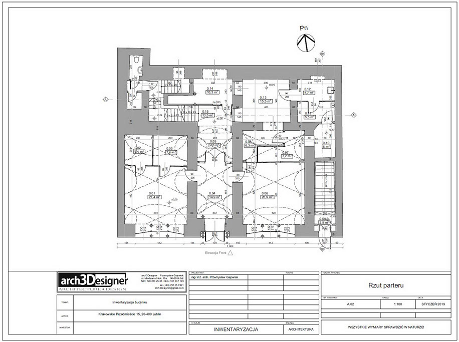
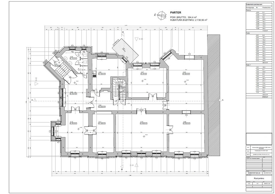
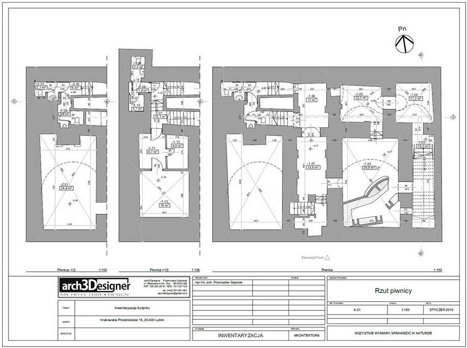
KAMIENICA, LUBLIN

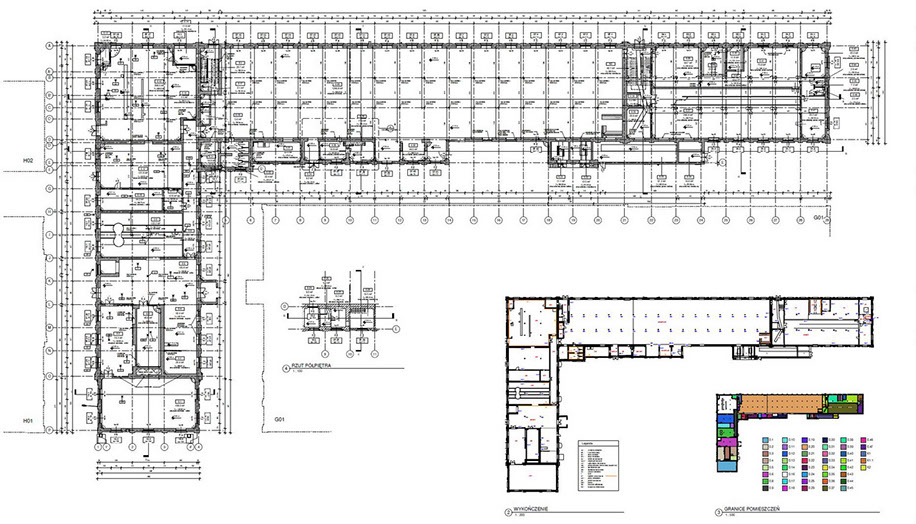
BUDYNEK USŁUGOWO-HOTELOWY OK. 10 000 M2, WARSZAWA

DWÓR Z 1752r., JESIONNA

KAMIENICA, LUBLIN, KRAKOWSKIE PRZEDMIEŚCIE

BUDYNKI G1 I G2, ŁÓDŹ, TYMIENIECKIEGO

INWENTARYZACJE RÓŻNE, POZNAŃ / ŁÓDŹ

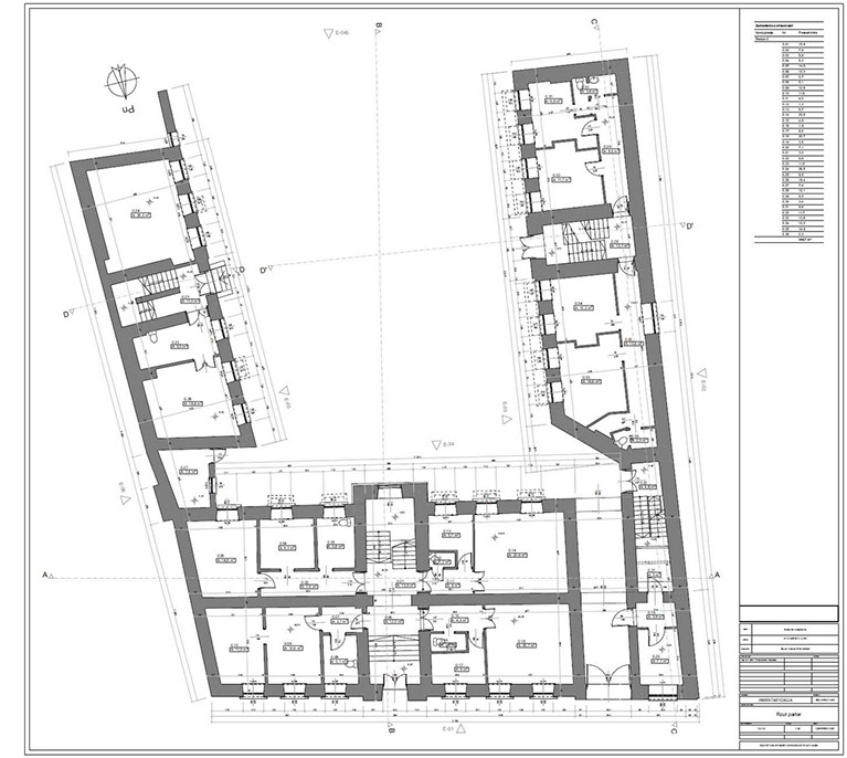
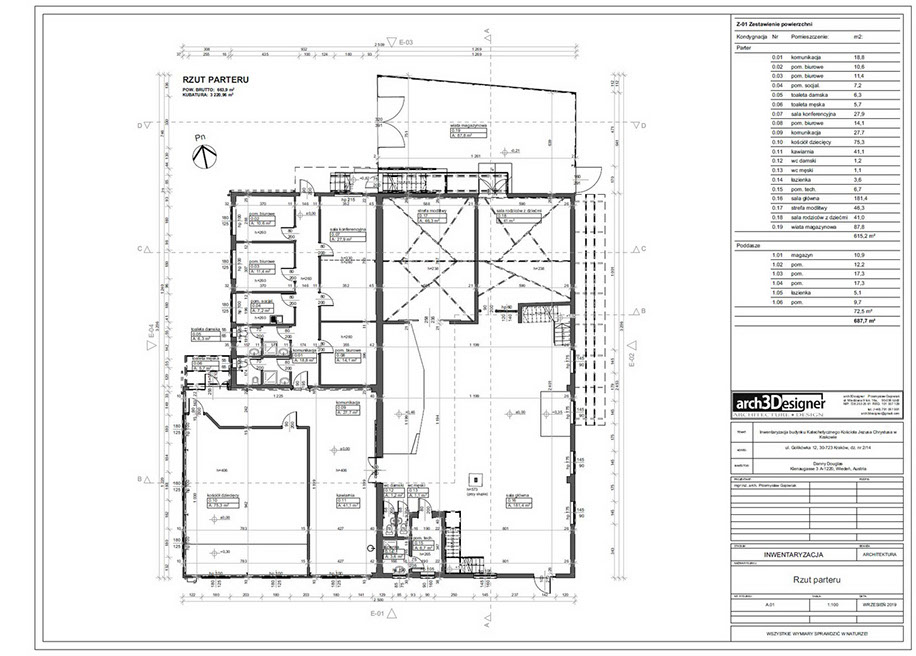
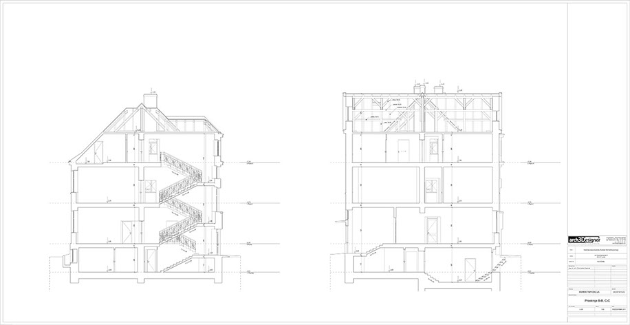
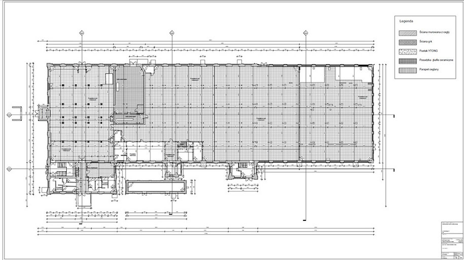
BUDYNEK KATECHETYCZNEGO KOŚCIOŁA JEZUSA CHRYSTUSA, KRAKÓW

BUDYNEK KOMISJI OBWODOWEJ, LUBLIN

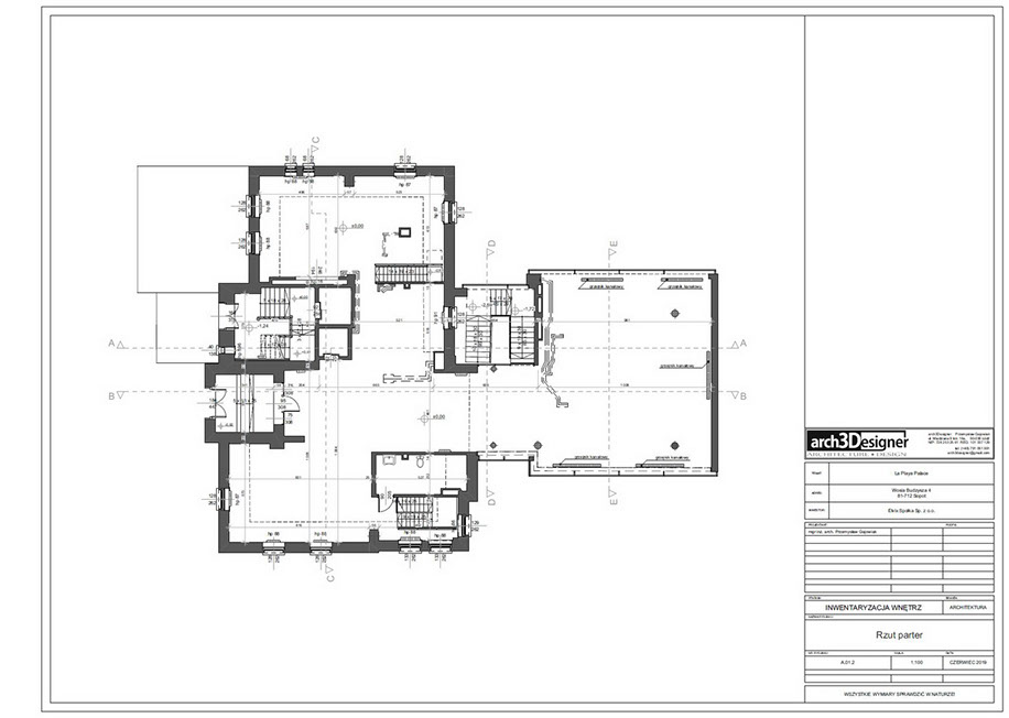
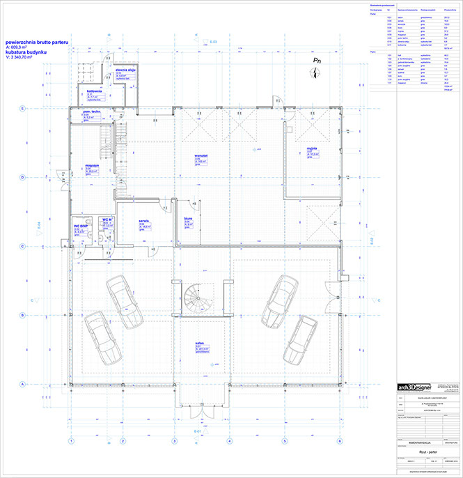
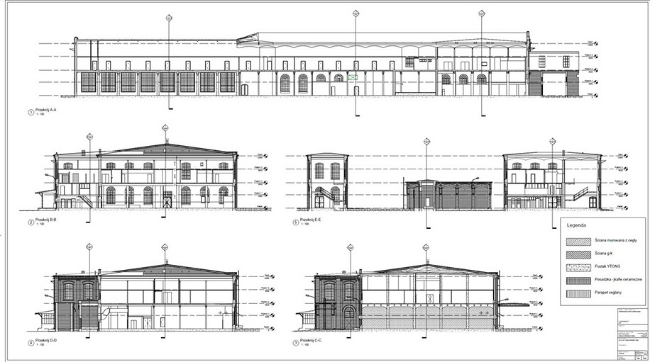
LA PLAYA PALACE - WNĘTRZA, SOPOT

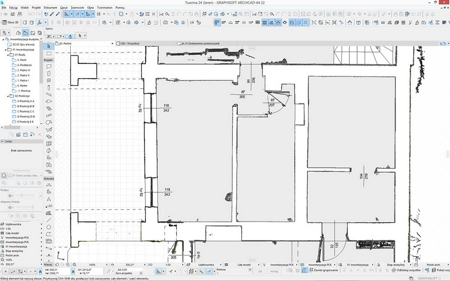
BUDYNEK POFABRYCZNY, ŁÓDŹ, TUWIMA 10

TEREN ŻWIROWNI POD ŁOWICZEM

SALON JAGUARA, ŁÓDŹ, PRZYBYSZEWSKIEGO 176/178

BUDYNEK BIUROWY, ŁÓDŹ, ZACHODNIA 70

SZPITAL DERMATOLOGICZNY, ŁÓDŹ, KRZEMIENIECKA 5

INNE REALIZACJE

Fotogrametria w animacji!

 

Oto przykłady implementacji fotogrametrii i skanów do animacji. Dzięki tej kombinacji możemy tworzyć profesjonalnie wyglądające projekcje stanu istniejącego, w połączeniu z nowo zaprojektowaną architekturą!

Całość dopełnia profesjonalny montaż do podkładu muzycznego w 3-4 minutowy klip video.

 

Zapraszamy do kontaktu i przygotowania oferty cenowej dla Twojej realizacji. Miłego oglądania!

ZAPRASZAMY DO WSPÓŁPRACY!