PL | EN

13.04.2025

 

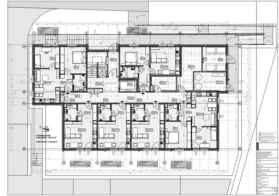
Mieszkania dla ofiar powodzi w Lądku Zdroju

 

Na jesieni roku 2024 wielka powódź zniszczyła Lądek Zdrój.. Otrzymaliśmy zlecenie zaprojektowania nowych mieszkań, które miasto zapewni poszkodowanym mieszkańcom. W wyniku naszych działań zdaliśmy projekt dwóch budynków wielorodzinnych z 40-toma mieszkaniami. Poniżej wizualizacje do projektu wykonawczego.

 

Wizualizacje projektu znajdziesz tutaj -> kliknij tutaj

28.08.2024

 

Stało się! Oficjalne otwarcie nowego Artystycznego Podwórka w Łodzi!

 

Rewitalizacja zakończona i podwórko Piotrkowska 118 zostało oficjalnie otwarte przez Panią Prezydent Łodzi Hannę Zdanowską. Nasze wspólne dzieło projektowe stworzone we współpracy z uznanym artystą Andrzejem Fogttem, zaiskrzyło w pełni słońca a wieczorem zaświeciło na wiele kolorów! Mowa tu o wspaniałych 150 kilowych kryształowych żyrandolach pałacowych, które dumnie zawisły w podwórku.

 

Więcej o tym wspaniałym projekcie znajdziesz tutaj -> kliknij tutaj

28.01.2022

 

Wyróżnienie Budowa XXI wieku w kategorii "Obiekty zdrowia" - SPZOZ Łysomice!

Od konkursu po projekt budowlany i wykonawczy. Od projektu po realizację i budowę obiektu. Budynek już oficjalnie został otwarty i pełni funkcję, do jakiej został powołany - opieka nad zdrowiem ludzi.

 

Ciekawa forma bryły, nowatorskie rozwiązania oraz funkcjonalność została doceniona przez jury Ogólnopolskiego Konkursu Otwartego - Modernizacja Roku & Budowa XXI wieku. Otrzymaliśmy wyróżnienie w kategorii "zdrowie". Obiekt spodobał się jury oraz osobom głosującym. Dziękujemy za uznanie i miejmy nadzieję, że to nie ostatnia nasza realizacja oraz uznanie.

 

 

 

 

 

 

 

 

 

Więcej informacji znajdziesz tutaj -> kliknij tutaj

04.05.2021

 

Inwentaryzacja BIM szkieletu budynku usługowo-hotelowego w Warszawie

 

Kolejny ciekawy temat inwentaryzacji BIM budynku o powierzchni ponad 10 000 m2. Dzięki precyzyjnym pomiarom mieliśmy możliwość wiernie odwzorować co do centymetra budynek, który ma szansę na swoje drugie życie. Stropy, słupy, ponad 1600 otworowań pod instalacje. Skan również obnażył ugięcia stropów. Dzięki technologi skaningu laserowego, możemy nie tylko wykonać inwentaryzacje budowlane, ale również inwentaryzacje powykonawcze dla kontroli wykonania poszczególnych elementów budynku.

 

Wyniki naszej pracy znajdziesz tutaj -> kliknij tutaj

19.04.2021

 

Inwentaryzacja pięknego, zabytkowego dworu z XVI wieku w Jasionnej

 

Tylko dzięki precyzyjnemu laserowemu skanowaniu, mieliśmy możliwość rzetelnie podejść do tematu zabytkowego dworu wybudowanego w 1752 roku. Skan obnażył niedoskonałości ówczesnego budownictwa a dzięki nowoczesnym technologiom, mieliśmy możliwość precyzyjnego odtworzenia budynku modelując obiekt BIM na bazie chmury punktów.

 

Wyniki naszej pracy znajdziesz tutaj -> kliknij tutaj

28.04.2020

 

SPZOZ Łysomice - niebawem zakończenie prac nad przychodnią pod Toruniem!

 

Mimo problemów obecnych czasów (COVID-19), prowadzona jest budowa Samodzielnego Publicznego Zakładu Opieki Zdrowotnej w Łysomicach. Nasz projekt nabrał kształtów! Trwają prace zewnętrzne wykończeniowe jak również wykańczane jest wnętrze. Być może już w sierpniu nastąpi otwarcie placówki. Jesteśmy dumni, że braliśmy udział w tej realizacji od procesu działań koncepcyjnych i wygrania konkursu po projekt budowlany i wykonawczy.

 

Zachęcamy do śledzenia Naszych wiadomości by zobaczyć gotową realizację!

 

Poniżej kilka zdjęć z placu budowy natomiast zapraszamy również do obejrzenia animacji, którą zrobiliśmy w fazie koncepcyjnej, pokazującej docelową realizację. Przygotowanie do konkursu - dokumentacje rysunkowe, wizualizacje, animacja i plansze, trwało jedynie 10 dni dzięki zastosowaniu technologii BIM! Temat wykonany w niewiarygodnym tempie przy zachowaniu estetyki a przede wszystkim funkcjonalności.

 

Animację przedstawiającą powyższą realizację znajdziesz tutaj -> kliknij tutaj.

01.04.2020

 

Rewitalizacja Łodzi - artystyczne podwórko!

 

Łódź to symbol procesów rewitalizacji XXI wieku. Staliśmy się częścią tego procesu i we współpracy ze sławnym, znanym na całym świecie artystą Andrzejem Fogttem, stworzyliśmy koncepcję a następnie projekt na zlecenie miasta. Projekt tzw "artystycznego podwórka" gdzie sklepienie będą stanowiły 3,5 metrowe kandelabry z programowalnym oświetleniem LED. Mamy nadzieję, że ten niekonwencjonalny pomysł znajdzie aprobatę wśród mieszkańców Łodzi i turystów odwiedzających ul. Piotrkowską.

A może kolacja pod gwieździstym niebem w romantycznym świetle kryształowych żyrandoli?

 

Ze względu na obecną sytuację (COVID-19), niestety realizacja będzie przełożona w czasie. Prawdopodobny termin to rok 2022.

 

Poniżej przedstawiamy kilka wizualizacji stanu istniejącego oraz projektowanego.

Zapraszamy również do obejrzenia animacji naszego projektu -> kliknij tutaj.

31.10.2019

 

Wielka inwentaryzacja BIM - fabryka Karola Scheiblera przy ul. Tymienieckiego, Łódź

 

Łódź, w ostatnich latach, podlega gruntownej rewitalizacji. Doczekaliśmy się również działań na historycznym terenie pofabrycznym dawnej fabryki Karola Scheiblera przy ul. Tymienieckiego w Łodzi. Tę łódzką perełkę architektoniczną objęła pod swoje skrzydła firma Echo Investment. W planach jest stworzenie na terenie nowych powierzchni biurowych, mieszkalnych i handlowo-rekreacyjnych.

 

Naszym zadaniem było zeskanowanie dwóch wielkich budynków pofabrycznych oznaczonych G1 i G2. Na podstawie skanów budowli oraz odkrywek części fundamentów, przygotowywana była precyzyjna dokumentacja BIM - inwentaryzacja dla celów projektowych.

 

Przykład wyników naszych działań znajdują się w przykładach prac na stronie z fotogrametrią i skanami -> kliknij tutaj.

Poniżej film pokazujący skalę obiektów i wnętrza objęte inwentaryzacją.

28.08.2019

 

Warszawa - 36 mieszkań w 3 tygodnie!

 

Kolejny ciekawy temat wykonany w ekspresowym tempie. Celem zadania było wykonanie kompleksowych dokumentacji wykończenia 36 mieszkań pod wynajem w kamienicy w Warszawie.

 

Każdy pakiet mieszkaniowy zawierał rzuty z instalacjami wodno-kanalizacyjnymi, aranżacją meblową, wykończeniem ścian, wykończeniem podłóg, instalacjami elektrycznymi. Do tego rzuty plus rozwinięcia ścian pomieszczeń charakterystycznych: łazienek i kuchni. W przypadku tego zlecenia postanowiłem przygotować całość w jednym pliku ArchiCAD, bez rozbijania na pojedyncze pliki po jednym na mieszkanie. Dzięki temu udało się stworzyć spójną dokumentację obejmującą ponad 600 arkuszy w publikatorze!

 

Dzięki wymodelowaniu w ArchiCADzie całej kamienicy i wszystkich mieszkań wraz z wyposażeniem, udało się stworzyć dziesiątki automatycznych zestawień wszelkich elementów wykończenia wnętrz. Dzięki pełnej automatyzacji udało mi się ukończyć temat w 21 dni. Czy BIM nie jest wspaniały? :)

 

 

Poszukujesz BIM Menedżera do swojego projektu? Osoby, która wdroży BIM w Twojej firmie? Skontaktuj się z nami!

15.07.2019

 

BIM Menedżer II etapu inwestycji Diasfera w Łodzi!

 

Miło mi jest wspomnieć o mojej ostatniej pracy na stanowisku BIM Menedżera przy drugim etapie inwestycji "Diasfera" w Łodzi, ul. Targowa 53. Przez ponad 3 miesiące opracowywałem projekt budowlany do obiektu mieszkaniowo-usługowego. Osiem kondygnacji nadziemnych i jedna podziemna, całość nawiązująca charakterem do łódzkich kamienic. To ponad 10 000 m2 powierzchni użytkowej z datą końca realizacji w roku 2022 przez spółkę developerską Duda Development. W projekcie najważniejszym elementem była zgrana koordynacja branżowa, szczególnie z branżą konstruktorską. Dzięki opracowywaniu dokumentacji w ArchiCADzie, bazującej na precyzyjnym modelu BIM, nasz zespół projektowy składał się jedynie z architekta prowadzącego, zajmującego się nadzorem nad projektem i wszelkimi uzgodnieniami, oraz menedżera BIM - opracowującego model i dokumentację, prowadzącego koordynację z branżami.

 

Poszukujesz BIM Menedżera do swojego projektu? Osoby, która wdroży BIM w Twojej firmie? Skontaktuj się z nami!

21.05.2019

 

Stanowisko pracy BIM Menedżera ;)

 

Produktywność +500% ;) Zmiany w sprzęcie firmowym i wejście w ekrany ultrapanoramiczne. Oto jak wygląda futurystyczne stanowisko pracy operatora BIM :) Monitor Dell o szerokości 122 cm i rozdzielczości 5120x1440 robi wrażenie! Nie ma projektu nie do ogarnięcia.

 

Czy jesteś gotów na zmiany? Poszukujesz osoby, która wdroży BIM w Twojej firmie? Skontaktuj się z nami!

27.02.2018

 

ArchiCAD BIM Menedżer :)

 

I stało się... Po serii szkoleń oraz egzaminach wewnętrznych, przygotowanych przez Graphisoft, dotarły dokumenty potwierdzające przygotowanie do pełnienia funkcji BIM Menadżer. Funkcja dość świeża w Polsce i czasem niedoceniana. A przecież chodzi tu o sprawne funkcjonowanie takiego organizmu jakim jest nowoczesne biuro projektowe, oparte na coraz bardziej powszechnej technologii BIM. Nie ma co ukrywać, przed zmianami nie ma ucieczki. Kwestia, jak jesteśmy przygotowani do bezproblemowej współpracy branżowej przy dużych realizacjach. Oszczędność na osobie kompetentnej, znającej doskonale zagadnienia funkcjonowania oprogramowania oraz bezkolizyjnej wymiany danych, może zwiększyć koszty spowodowane opóźnieniami jak i błędami na przestrzeni kolejnych faz inwestycji.

 

Czy jesteś gotów na zmiany? Poszukujesz osoby, która wdroży BIM w Twojej firmie? Skontaktuj się z nami!

01.10.2017

 

PROMOCJA uaktualnienia do ArchiCAD 21! Przedłużona do 13 października!

 

ARCHICAD 21 uaktualnienie od wersji 20: 4.990 zł (cena standardowa), 3.880 zł (cena z ArchiCLUBem), 3.300 zł (cena promocyjna, też z ArchiCLUBem) - 15% taniej!

ARCHICAD 21 uaktualnienie od wersji 19: 7.980 zł (cena standardowa), 5.880 zł (cena z ArchiCLUBem), 4.700 (cena promocyjna, też z ArchiCLUBem) - 20% taniej

ARCHICAD 21 uaktualnienie od wersji 18 lub starszych: 10.980 (cena standardowa), 7.870 (cena z ArchiCLUBem), 5.900 (cena promocyjna, też z ArchiCLUBem) - 25% taniej!

ARCHICAD 21 od AC SE niezależnie od wersji: 13.450 zł (cena standardowa), 9.750 zł (cena z ArchiCLUBem), 6.830 (cena promocyjna, też z ArchiCLUBem) - 30% taniej!

 

 

 

05.05.2017

 

Prelekcja o wirtualnej rzeczywistości w budownictwie i architekturze w Izbie Budowlanej!

 

Art&Design Society oraz Allmendinger, Akademia Architektury, Tower Building, Regionalna Izba Budownictwa w Łodzi i MANU Niezależna Manufaktura Idei mają zaszczyt zaprosić Państwa na majowe comiesięczne spotkanie w 2017 roku w ramach cyklu „Środy na Łąkowej – Budujemy Łódź Unikalną"

Nasze najbliższe spotkanie odbędzie się 10 maja 2017 roku w godz. 14.00 - 16.00 - lub ostatniego unikatowego pomysłu

w siedzibie Regionalnej Izby Budownictwa w Łodzi przy ul. Łąkowej 11 (4 piętro, sala im. Prof. Jakuba Wujka)

 

Tym razem skupimy się na dwu tematach.

 

 Pierwszy temat: "Dokąd zmierzamy w budownictwie publicznym w Łodzi i Polsce? Czy aby idziemy w dobrą stronę?" - przedstawi gość specjalny - Bartłomiej Dobosz.

 

 Drugi temat: "Rzeczywistość Wirtualna w budownictwie i architekturze" - przedstawi gość specjalny -  Przemysław Gajowiak.

 

 

 

10-12.03.2017

 

Prelekcja o wirtualnej rzeczywistości w budownictwie i architekturze w Łodzi!

 

Zapraszamy 10-12 marca 2017 do hali Expo w Łodzi na XXIV Targi Budownictwa i Wyposażenia Wnętrz.

 

http://interbud.interservis.pl

 

Na miejscu będzie możliwość wzięcia udziału w specjalnej prelekcji pod tytułem:

"Rzeczywistość wirtualna w budownictwie i architekturze"

 

Prelekcje odbędą się:

sobota godz. 15:50 - 16:20 (30 min)

niedziela godz. 11:00 - 11:30 (30 min)

 

Będzie to temat poświęcony wykorzystaniu programów RENDERLights i Twinmotion 2016 w drodze do osiągnięcia sukcesu w zdobywaniu klientów. Również będzie to okazja do rozmowy po prelekcji. Z chęcią odpowiemy na wszelkie pytania, doradzimy a dla zainteresowanych przygotujemy korzystną ofertę na oprogramowanie!

 

Po prelekcji zapraszamy do udziału w krótkiej ankiecie. Ankiety będą brały udział w losowaniu nagród w postaci gogli wirtualnej rzeczywistości:

RENDERLights Cardboard!

01.10.2016

 

Festiwal Wirtualnej Rzeczywistości w Łodzi!

 

Zapraszamy na niesamowity Festiwal Wirtualnej Rzeczywistości w 28 października, który odbedzie się w Łodzi na terenie rewitalizowanej elektrowni EC-1!

 

Wśród wystawców będzie również stoisko RENDERLights!

 

To niezwykłe wydarzenie to niepowtarzalna możliwość wypróbowania gogli wirtualnej rzeczywistości wielu producentów,  ciekawe konferencje, konkursy i wystawy.

 

Więcej szczegółów zanajdziecie tutaj: http://vrchallenge.io

 

 

 

29.07.2016

 

Już jest! ArchiCAD 20 w wersji polskiej!

 

Już od dzisiaj można zamawiać pełne licencje lub aktualizacje ArchiCAD 20!

 

UWAGA PROMOCJA!

 

Od 1 sierpnia do 30 września 2016 promocja na aktualizacje.

 

Zapraszamy do kontaktu!

e-mail: arch3designer@gmail.com

tel.: 791 051 991

 

 

 

21.06.2016

 

Poszukiwane osoby do prezentacji oprogramowania

 

Poszukujemy osób na terenie całej Polski do współpracy przy dystrybucji programów do animacji w czasie rzeczywistym RENDERLights i Twinmotion.

 

Wymagania:

  • doświadczenie z wizualizacją i/lub animacją komputerową
  • znajomość podstawowa programu ArchiCAD
  • komunikatywność
  • własny laptop do prezentacji oprogramowania
  • własna działalność (możliwość wystawiania faktur VAT)

 

Zakwalifikowane osoby po podpisaniu umowy będą zajmowały się prezentacjami oprogramowania w celu pozyskiwania klientów.

 

Oferujemy:

  • korzystne warunki wynagrodzenia
  • swobodę działania! :)

 

Kontakt w sprawie współpracy:

e-mail: info@arch3designer.pl

tel.: 791 051 991

 

 

 

04.06.2016

 

Twinmotion for the win! Czyli ciekawy artykuł na temat naszego konkursu :)

 

Trafiliśmy na łamy bloga Twinmotion, programu do animacji w czasie rzeczywistym firmy Abvent. Zapraszamy do zapoznania się z artykułem na temat naszego wygranego konkursu. Niestety tylko po angielsku ale zawsze można użyć tłumacza google ;) Zobacz jak dzięki wyrafinowanemu, oraz niezwykle prostemu w obsłudze programowi możesz zwiększyć swoje szanse w konkursach architektonicznych! Nam się już udało!

 

Artykuł znajdziesz TUTAJ.

 

A jeśli jesteś zainteresowany możliwościami i zakupem oprogramowania to zapraszamy TUTAJ!

 

 

 

01.06.2016

 

Jesteśmy w galerii najlepszych projektów Twinmotion!

 

Zobacz galerię najlepszych projektów wykonanych za pomocą Twinmotion. Może Ty też do niej dołączysz?

https://twinmotion.abvent.com/gallery/

 

Zapraszamy do zapoznania się z programem Twinmotion TUTAJ!

 

 

 

11.05.2016

 

To już oficjalne. Wygraliśmy konkurs architektoniczny na Samodzielny Publiczny Zakład Opieki Zdrowotnej w Łysomicach!

 

Za moment ruszamy z projektem budowlanym i wykonawczym. Konkurs ogarnięty w 10 dni :)

Sporą zasługą w ocenie prócz walorów architektonicznych i funkcjonalnych było wykonanie profesjonalnie wyglądającej animacji w Twinmotion. Zapraszamy do zapoznania się z klipem wideo TUTAJ.

 

 

 

01.05.2016

 

Twinmotion 2016 już w sprzedaży! Zamów prezentację i poznaj moc możliwości!

 

Zapraszamy do zapoznania się z nowoczesnym programem do wykonywania animacji w czasie rzeczywistym! Wyprzedź konkurencję i pokaż coś więcej niż tylko statyczne wizualizacje. Jesteśmy partnerem Abvent i zajmujemy się dystrybucją programu Twinmotion 2016. Doradzimy, zaprezentujemy i pomożemy w podjęciu decyzji.

 

Po więcej informacji zapraszamy TUTAJ.

 

 

 

20.04.2015

 

ArchiCAD Spring Academy 2015 i RENDERLights!

 

Zapraszamy na niesamowite wydarzenie. Po raz pierwszy w Polsce - ArchiCAD Spring Academy.

 

Użytkownicy i sympatycy programu oraz zaproszeni eksperci spotkają się 22 i 23 maja w Krakowie. Celem konferencji jest umożliwienie uczestnikom wejścia w świat modelowania informacji o budynku BIM na przykładzie programu ArchiCAD oraz powiązanych z nim narzędzi, rozwiązań i technologii.

Eksperci z Polski i ze Świata przedstawią przyszłościowe rozwiązania informatyczne w formie prezentacji oraz warsztatów.

 

Zapraszam na warsztaty z RENDERLights - innowacyjnego oprogramowania dla architektów i projektantów do tworzenia wirtualnej rzeczywistości.

 

UWAGA! Podczas wydarzenia będzie możliwość zakupu licencji RENDERLights w promocyjnej cenie!

 

 

 

01.08.2013

 

Poszukiwane branże pracujące w IFC.

 

Poszukujemy branż:

 

- konstrukcyjna

- sanitarna

- elektryczna

 

do stworzenia zespołu projektowego.

 

Warunkiem koniecznym jest współpraca przez moduł IFC (współpraca z programami opartymi na Open BIM i pracującymi w wymiarze 3D).

 

CV proszę kierować pod adres: arch3designer@gmail.com

 

 

Praca w programie:

 

- programy z możliwością zapisu do IFC

 

 

 

17.06.2013

 

Już niewiele czasu do końca czerwca i niewiele czasu na decyzję o uaktualnieniach.

 

To świetna okazja by za relatywnie małe pieniądze przesiąść się na najnowszego ArchiCADa, czyli 17-tkę, która latem ujrzy światło dzienne.

17-tka to może być impuls dla architektów do przejścia na zupełnie inne projektowanie.

 

17-tka kusi by zapomnieć o plikach dwg i dxf dla branż - format IFC może wrócić do Ciebie od branżystów z informacjami na zupełnie innym poziomie. Na świecie już tak się projektuje, nie odkrywamy Ameryki - wystarczy iść ścieżką już wytyczoną dla projektowania BIM!

Biura, które będą potrafiły posługiwać się technologią BIM będą miały duże, dobrze płatne zlecenia, nie na poziomie 2-3% od wartości inwestycji, ale przynajmniej 10%!!

 

Wystarczy 17-tka i odrobina więcej wiedzy na temat BIM, oczywiście niezbędny jest współpracujący na bazie plików IFC zespół branżystów, świadomy inwestor i generalny wykonawca - tak się już pracuje na świecie.

 

To nie stanie się nagle, to proces, do tego trzeba się przygotować, wdrożyć, poćwiczyć. Jeżeli zaczniesz już teraz, będziesz w awangardzie biur projektowych. Jeżeli tego nie uczynisz, może nawet nic się nie stanie - w dalszym ciągu będziesz miał zlecenia na domki jednorodzinne, czasami może „wleci” jakaś wiata do zaprojektowania, ale duże zlecenia będą powoli „odpływać”...

 

Jeżeli chciałbyś się więcej dowiedzieć - istnieje taka możliwość by w Twoim biurze odbyła się specjalna prezentacja na ten temat

W razie zainteresowania zapraszam TUTAJ.

 

To naprawdę okazja! Zasada jest prosta - kupujesz uaktualnienie do 16-tki, znacznie taniej niż standardowo, obowiązkowo wchodzisz na rok do ArchiClubu - latem dostajesz w związku z tym już za darmo 17-tkę, ale płacisz trzy razy, co kwartał kwotę 690 zł.

 

ARCHICAD 16 - uaktualnienie od 15, normalna cena 3.543 zł, cena promocyjna 2.904 zł - uaktualnienie kupujesz za 82% pierwotnej ceny.

ARCHICAD 16 - uaktualnienie od 14, normalna cena 5.310 zł, cena promocyjna 3.890 zł - uaktualnienie kupujesz za 73% pierwotnej ceny.

ARCHICAD 16 - uaktualnienie od 13 i wcześniejszych wersji, normalna cena 7.077 zł, cena promocyjna 4.731 zł - uaktualnienie kupujesz za 67% pierwotnej ceny.

 

Uaktualnienie od ArchiCAD SE2006 i 2007 do ARCHICADa 16, normalna cena 15.826 zł, cena promocyjna 8.976 zł - uaktualnienie kupujesz za 57% pierwotnej ceny.

Uaktualnienie od ArchiCAD SE2008-2013 do ARCHICADa 16, normalna cena 11.537 zł, cena promocyjna 6.828 zł - uaktualnienie kupujesz za 59% pierwotnej ceny.

 

Dla osób/biur, które mają jedną lub więcej licencji jest możliwość leasingowania:

proszę o kontakt w tej sprawie z Panem Wojciechem Wycichowskim - tel.: 602 358 530, wtedy zostanie wykonana kalkulacja ile to kosztuje. Ale proszę nie czekać na załatwienie spraw leasingowych do ostatniej chwili - to może trwać kilka dni.

 

W momencie pojawienia się ArchiCADa 17-tki będzie ona prawdopodobnie o 10% droższa i o tyle też wzrosną ceny uaktualnień, co z pewnością nie będzie sprzyjało decyzjom finansowym. Wniosek jest więc prosty - albo teraz, albo... później za znacznie większe pieniądze.

 

Ceny mogą minimalnie drgnąć - liczę aktualną cenę według obowiązującego tego dnia kursu euro. Wszystkie ceny netto.